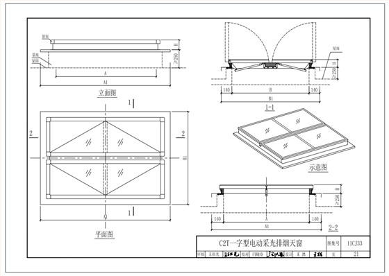
一字型電動采光排煙天窗的窗扇與安裝面平行或呈6°夾角,窗體高度一般為135mm。從俯視角度觀看,天窗為大寫一字形,由電動推桿、窗扇、窗體等主要結(jié)構(gòu)組成,開啟角度可達90°,排煙效果好。
其示意圖、立面圖、平面圖、剖面圖可參考國標圖集11CJ33《通風采光天窗》、09J621-2《電動采光排煙天窗》、21J621-1《天窗》、22CJ87-3《采光、通風、排煙天窗(三)》等圖集,以上圖集均可在本網(wǎng)站首頁下載。

國標圖集11CJ33主編單位結(jié)構(gòu)防水技術(實用新型專利:ZL 2019 2 0682075.0)028-82630900
2023-04-24 17:54:07
其示意圖、立面圖、平面圖、剖面圖可參考國標圖集11CJ33《通風采光天窗》、09J621-2《電動采光排煙天窗》、21J621-1《天窗》、22CJ87-3《采光、通風、排煙天窗(三)》等圖集,以上圖集均可在本網(wǎng)站首頁下載。