側開式圓拱形電動采光排煙天窗具有C3CT與MC3CT兩種窗型,二者在結構、規格尺寸與性能上有所差異,下面將為您比較分析。
1. 規格尺寸對比
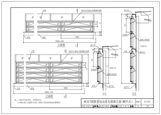
根據11CJ33圖集,C3CT與MC3CT側開式圓拱形電動采光排煙天窗的規格尺寸存在一定差異。C3CT天窗的洞口寬度通常為2000-6000mm,長度可根據需求按6000mm的整數倍調整(如6000×n),窗洞高度為550-880mm,窗體高度為1100-1714mm。
而MC3CT天窗的洞口寬度為3000-6000mm,窗洞高度為1200-3000mm,窗體高度為1830-4350mm,窗體高度更高,體積更大。
2. 通風性能對比
MC3CT天窗的設計采用雙層或四層窗扇結構,通過多組窗扇的聯動開啟,有效通風面積顯著增加,適合需要高強度通風換氣的工業建筑。相比之下,C3CT僅配置單層窗扇,能滿足常規通風需求。從11CJ33通風采光天窗圖集來看,C3CT圓拱型天窗的有效開口面積為3.78-7.29㎡/樘,MC3CT圓拱型天窗的有效開口面積為9.72-25.92㎡/樘。
綜上,兩者在規格與功能上各有側重,用戶需根據實際需求選擇。若追求高效通風蓋,MC3CT側開式圓拱形電動采光排煙天窗更為合適。

MCW5型通風天窗(暗扣式)
MCW7型通風天窗(箱型骨架式)
C1XT三角形電動采光排煙天窗(下開式)
TC5型流線型通風天窗